Wykończone 3 pokojowe M. | Nowe bud. | Centrum WWY

Mieszkanie na sprzedaż
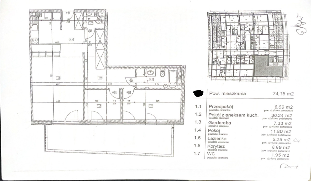
880 000,00 PLN , Pow. 73,68 m2
Drukuj ofertę
Drukuj ofertę
Typ nieruchomości:
Mieszkanie
Powierzchnia:
73,68 m2
Typ transakcji:
sprzedaż
Liczba pokoi:
3
Lokalizacja:
Wyszków , 11 Listopada
Rok budowy:
2020
Piętro:
1 na 4
Numer oferty:
326128
Cena za m2:
11 943,54 PLN
Nowe wykończone, umeblowane mieszkanie z balkonem. Centrum Wyszkowa, ul. 11 Listopada 47 

Opis mieszkania:
3-pokojowe mieszkanie z aneksem kuchennym oraz dwoma łazienkami, jedna z kabiną prysznicową druga z wanną o łącznej powierzchni 73,68 m2. Widna kuchnia w zabudowie z aneksem kuchennym, miejscem na zmywarkę, lodówką, piekarnikiem, szafkami. Lokal w bardzo dobrym stanie, gotowy do zamieszkania. Z salonu oraz pokoi wyjdziemy na  bardzo duży przestronny balkon o powierzchni 25,42 m2. Mieszkanie świetnie sprawdzi się jako zakup na własne potrzeby mieszkaniowe jak i zakup pod kątem inwestycyjnym np. na prowadzenie działalności gospodarczej.  Zabudowa, meble oraz sprzęt w cenie mieszkania. (Część mebli do uzgodnienia)
 
Budynek:
Położony w centrum Wyszkowa przy ul. 11 Listopada 47. Oddany do użytkowania w 2020 roku. Budynek o podwyższonym standardzie, w lokalu okna  3-szybowe ,, Salamander". Sam lokal znajduje się na pierwszym piętrze czteropiętrowego budynku z windą

Lokalizacja:
W samym Wyszkowie znajdziemy różne punkty usługowo-handlowe. Wyszków będąc miastem powiatowym z każdym kolejnym rokiem proponuje coraz więcej dla mieszkańców. W niedalekiej odległości  znajduje się Park miejski im.Karola Ferdynanda Wazy, plac miejski, lokale gastronomiczne i wiele więcej.

Stan prawny i opłaty:
Pełna własność z założoną księgą wieczystą. 
Jest możliwość zamiany na mniejsze mieszkanie  z dopłatą.

Polecam i zapraszam na prezentację!

Treść niniejszego ogłoszenia nie stanowi oferty handlowej w rozumieniu Kodeksu Cywilnego. Treść ma charakter informacyjny i zalecamy ich osobistą weryfikację. 


Nieprawidłowy adres E-mail